Available Spaces

Floor 5
Sq Ft: 4,765
Entire floor is vacant and will undergo renovation upon request. Future tenants have the privilege of complimentary space planning and have the options for an open office concept
– Individual suites
– Conference rooms
– Open floor plan with exterior facing windows offering panoramic view of the city
– Natural light from floor to ceiling
Location:
Suite 510 ( 207 SF)
Suite 530 (194 SF)
Suite 550 (4,364 SF)
Suite 500 (9,624 SF)

Floor 6
Sq Ft: 16,119
Superior office spaces with oversized windows overlooking the best views in the city of Dayton.
– Conference rooms
– Individual offices
– Mahogany accent walls
– Break/ Lunch rooms
Location:
Entire 6th Floor

Floor 7
Sq Ft: 15,132
– Individual office spaces
– Conference room
– Open floor plan offering room for creativity
– Abundance of natural lighting
Location:
Suite 710 (8,692 SF)
Suite 700 (2,432 SF)
Suite 705 ( 4,008 SF)

Floor 8
Sq Ft: 9,245
– Individual office spaces
– Waiting room
– Conference room
– Open floor plan that allows for an open concept office plan
Location:
Suite 880 (4,653 SF)
Suite 870 (1,681 SF)
Suite 800 (2,504 SF)
Suite 810 (4,979 SF)
Suite 890 (407 SF)

Floor 12
Sq Ft: 9,004
– Offering multiple office spaces
– Break room
– Stationary area
– Natural light floods the space
Location:
Suite 1260 (2,676 SF)
Suite 1250 (1,453 SF)
Suite 1230 (844 SF)
Suite 1209 (611 SF)
Suite 1206 (286 SF)
Suite 1215 (2,160 SF)

Floor 13
Sq Ft: 4,997
– Private offices along the perimeter
– Central area with cubicle spaces for departments
– Floor-to-ceiling windows offering panoramic city views
Location:
Suite 1360 (4,991 SF)
Suite 1340 (587 SF)
Suite 1330 (487 SF)
Suite 1300 (1,042 SF)

Floor 14
Sq Ft: 13,763
– Private/ Individual suites
– Conference rooms
– Open floor plan with exterior facing windows offering panoramic view of the city
– Natural light from floor to ceiling
Location:
Suite 1450 (2,766 SF)
Suite 1400 (10,762 SF)
Suite 1490 (235 SF)

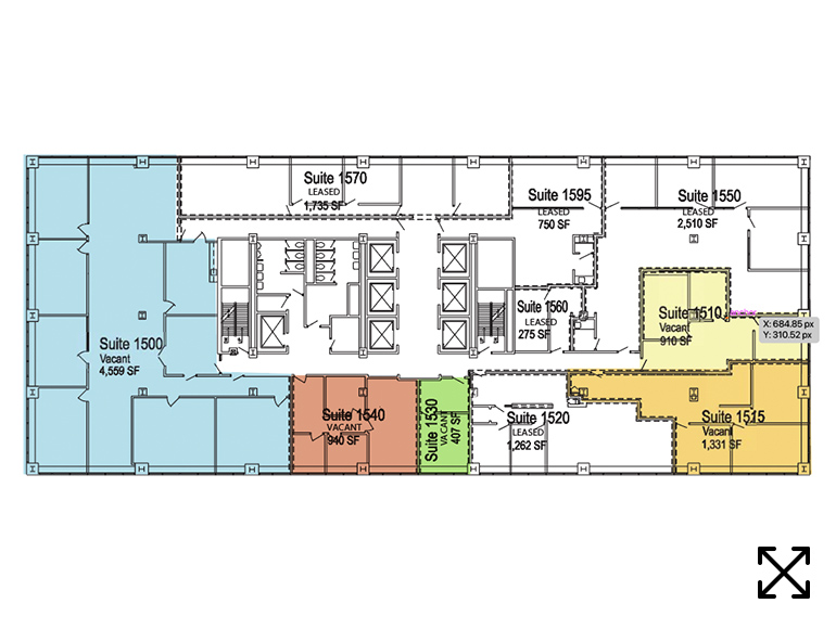
Floor 15
Sq Ft: 7,075
– Private offices along the perimeter
– Conference rooms
– Open floor plan with exterior facing windows offering panoramic view of the city
Location:
Suite 1500 (4,559 SF)
Suite 1530 (407 SF)
Suite 1515 (1,331 SF)

Floor 16
Sq Ft: 12,294
– Conference rooms
– Individual offices
– Bathroom halls
– Break/ Lunch rooms
Location:
Suite 1660 (2, 136 SF)

Floor 18
Sq Ft: 7,406
– Private offices along the perimeter
– Conference rooms
– Open floor plan with exterior facing windows offering panoramic view of the city
Location:
Suite 1815 (2,162 SF)
Suite 1820 (3,022 SF)

Floor 20
Sq Ft: 7,053
– Private offices along the perimeter
– Conference rooms
– Break/ Lunch rooms
– Natural light from floor to ceiling
– Exterior facing windows offering panoramic view of the city
Location:
Suite 2080 (3,763 SF)

Floor 21
Sq Ft: 5,867
– Private offices along the perimeter
– Conference rooms
– Break/ Lunch rooms
– Natural light from floor to ceiling
– Exterior facing windows offering panoramic view of the city
Location:
Suite 2100 (3,232 SF)

Floor 22
Sq Ft: 16,100
– Private offices along the perimeter
– Conference rooms
– Break/ Lunch rooms
– Natural light from floor to ceiling
– Exterior facing windows offering panoramic view of the city
Location:
Entire floor

Floor 24
Sq Ft: 16,100
– Conference rooms
– Individual offices
– Bathroom halls
– Break/ Lunch rooms
Location:
Suite 2482 (686 SF)
Suite 2480 (5,346 SF)
Get in Touch
Contact Us

